Education and Special Needs

PALACE for All
Islington, London N7

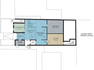
Relocation of the Special Needs Centre to a new purpose built building in Eden Grove, London N7, for the Barnsbury Housing Association and the Palace Board of Trustees. The new Centre is to incorporate meeting and play rooms, a research library area, therapy rooms, teaching areas and offices. Our services included a Feasibility Study and outline scheme design. Estimated building cost £ 1,48M in 2004

Loading image. Please wait
Twitter icon LinkedIn icon Facebook icon